


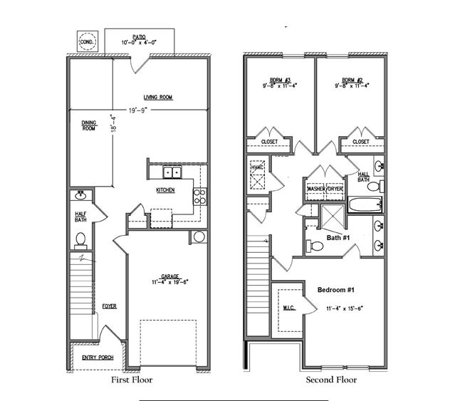
The Palm interior unit has 3 bedrooms, 2.5 baths and a fabulous open design that is perfect for entertaining. The open kitchen features Stainless Steel appliances, a smooth top range, built in microwave, quiet dishwasher, a large island bar, and a pantry. Adjacent from the kitchen, you will find a convenient half bathroom. Spacious living and dining area with beautiful natural light. Bedroom One offers a spacious walk-in closet, and the adjoining bath has a double vanity, 5' shower and linen closet. On the opposite side of the 2nd level, you will find bedrooms two and three that share a linen closet and full hallway bathroom. Interior features also include beautiful EVP flooring with frieze carpet in the bedrooms. Very stylish townhomes with a one car garage, fabric hurricane window and door protection, our Smart Home "Connect "system with your ...