




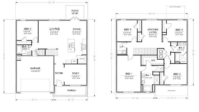
Welcome to Fallschase at Pathstone! This stunning 2 story Hayden plan features 5 beds, 3 full baths, a flex room, plus a second floor living area. The first floor has a guest bedroom, full bath and a large great room that is open to the dining area and kitchen. The kitchen features a large island with gorgeous granite countertops, an undermount sink, a smooth top range, built in microwave, quiet dishwasher and pantry. Bedroom 1 is located on the 2nd floor with a fabulous adjoining bathroom with granite counter tops, under mount sink, shower, large linen/storage closet and a spacious walk-in closet. The additional bedrooms, second living area and a full bathroom are located on the second floor. This home also comes standard with a Smart Home Technology package. Living at Fallschase gives you quick access to I-10, Navy Federal Credit Union, schools, medical facilit...
Stay informed with Livabl updates on new community details and available inventory.