











































Get additional information including price lists and floor plans.
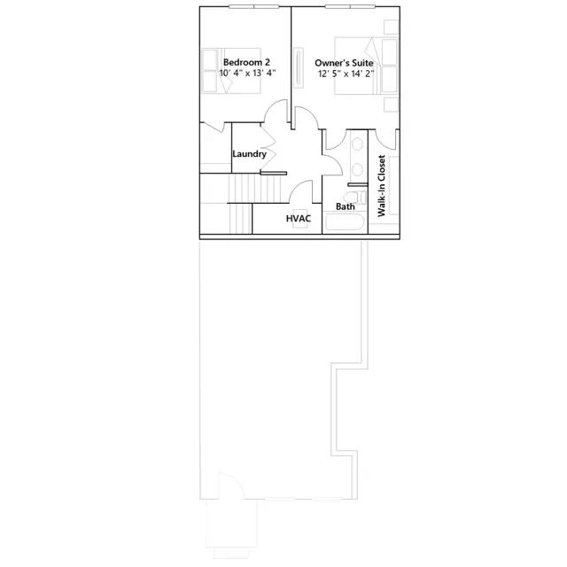
This two-story townhome features a convenient layout that makes smart use of the available space. On the first floor is a one-car garage, as well as an open concept living area with a family room, dining room and kitchen. Upstairs are two bedrooms and a full bathroom, including the owners suite, which has a spacious walk-in closet.
Stay informed with Livabl updates on new community details and available inventory.