hero-image-0
hero-image-1
hero-image-2
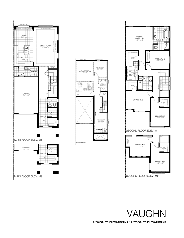
Saffron Estates - Phase 3
Sold
Sold
4
2
1
From 2,257
unit-banner-imageunit-banner-imageunit-banner-image
Vaughn Plan details
Vaughn Plan is now sold.
Check out available nearby plans below.