
















































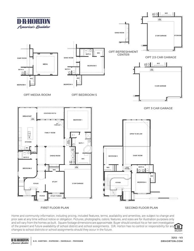
The Lorenzo floor plan offers a spacious, well-designed layout that seamlessly blends functionality with modern living. As you step onto the inviting front porch and enter the foyer, youre welcomed by a bright and open space. To your left, two secondary bedrooms share a full bath, creating a private retreat for family members or guests. Moving forward, the home opens up into a beautifully designed kitchen, complete with a central island, a walk-in pantry, and ample counter spaceperfect for meal preparation and entertaining. The kitchen flows effortlessly into the dining and family room, creating an open-concept design that enhances connectivity and comfort. Beyond the family room, a covered patio extends the living space outdoors, offering a perfect spot for relaxing or hosting gatherings. Tucked at the back of the home, the spacious Bedroom 1 provides a priv...
Stay informed with Livabl updates on new community details and available inventory.