






























Get additional information including price lists and floor plans.

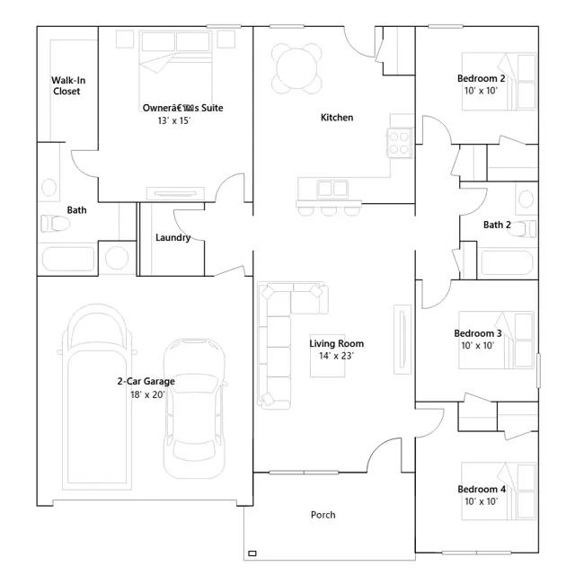
This new single-story home is ready for modern lifestyles. An open-concept floorplan shared between the kitchen and living room encourages simple everyday transitions and multitasking. Three secondary bedrooms are tucked away to the side of the home, opposite from the luxurious owners suite with a full bathroom and walk-in closet.
Stay informed with Livabl updates on new community details and available inventory.