






































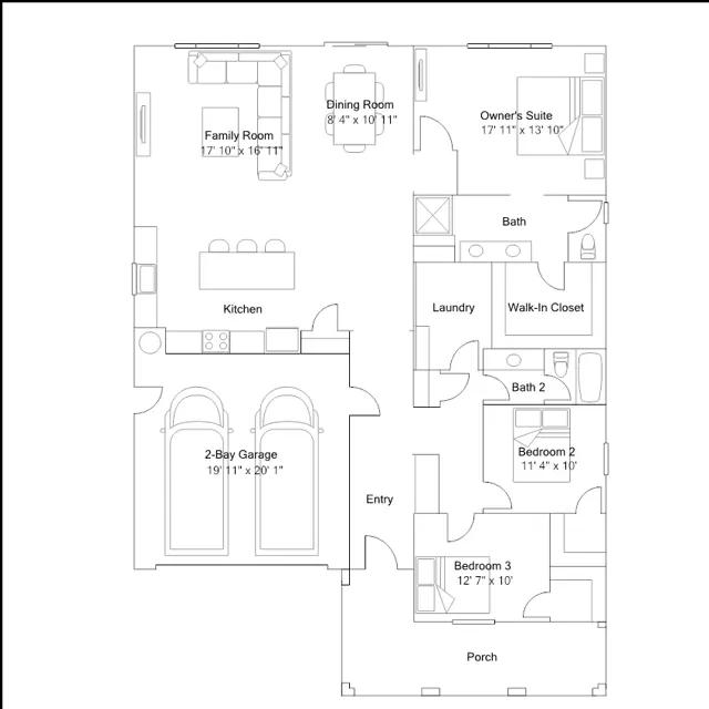
This single-story home showcases a spacious open floorplan where the family room, dining room and kitchen share a footprint. The owners suite enjoys a private location at the back of the home, complete with an en-suite bathroom and a walk-in closet. Two secondary bedrooms are situated off the entry, great for household members, overnight guests or space for a home office.