hero-image-0
hero-image-1

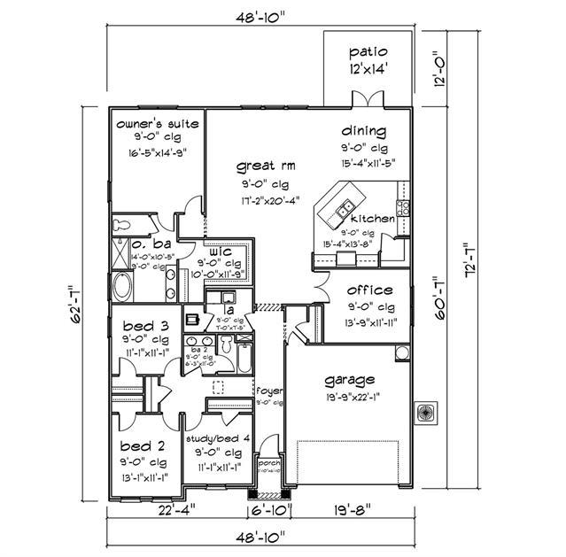
The Avion Plan

By

D.R. Horton

   |   

Northern Oaks

Northern Oaks
Sold
Sold
4
2
From 2,431
unit-banner-imageunit-banner-imageunit-banner-image
The Avion Plan details
The Avion Plan is now sold.
Check out available nearby plans below.