










































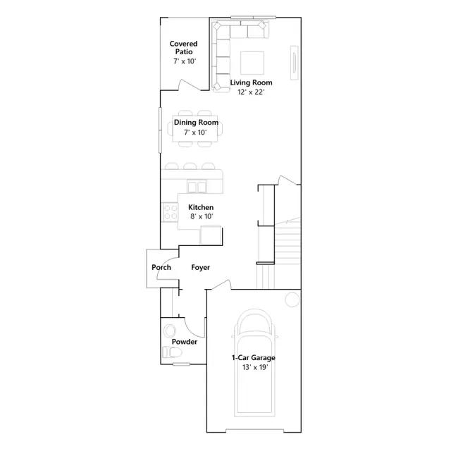
This two-story townhome showcases a contemporary open design among the first-floor kitchen, living room and dining room to promote seamless transitions between spaces. Nearby is a covered patio for outdoor relaxation. Upstairs caters to intimate spaces with a versatile loft area, two secondary bedrooms with shared access to a Jack-and-Jill style bathroom, along with the private owners suite complemented by an oversized walk-in closet.
Stay informed with Livabl updates on new community details and available inventory.