









































































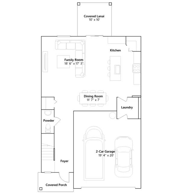
The first floor of this new two-story home is host to an open-concept layout that combines the kitchen with the living and dining areas, and an outdoor patio is easily reached off the main living space. Upstairs, five bedrooms surround a versatile loft, including the luxe owners suite, complete with a generous walk-in closet and en-suite bathroom. For those who call Rye Ranch home, this community puts you close to countless shopping, dining and entertainment options. Embark on adventures like never before at amazing parks and recreational sites just nearby. Right across the street are highly rated schools, perfect for growing families.
Stay informed with Livabl updates on new community details and available inventory.