

















































































Get additional information including price lists and floor plans.
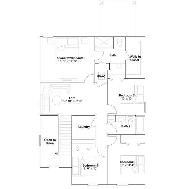
This expansive two-story home boasts a well-designed layout, featuring a first floor dedicated to shared living and entertaining. The open-concept design seamlessly connects the kitchen, dining room and family room, with a covered lanai extending the interior space outdoors. Upstairs, a spacious loft separates the three secondary bedrooms from the serene owner's suite. Completing the home is a convenient two-car garage.
Stay informed with Livabl updates on new community details and available inventory.