



















Images coming soon
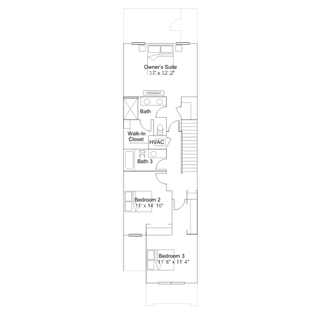
This two-story townhome has a great layout with a first floor dedicated to shared living and entertaining. Showcasing an open layout shared by the kitchen with island, dining room and family room, a covered porch opens it even more to the outdoors. Upstairs are all three bedrooms, including the owners suite with a private bathroom and walk-in closet.
Stay informed with Livabl updates on new community details and available inventory.