




































Get additional information including price lists and floor plans.
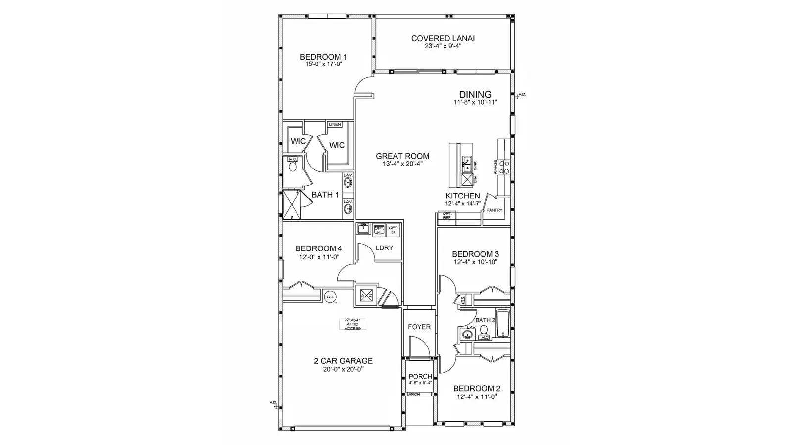
This all-concrete-block constructed, one-story layout optimizes living space with an open concept kitchen that overlooks the great room, dining area, and oversized outdoor covered lanai. The primary bedroom, located at the back of the home for privacy, includes an ensuite bathroom that boasts an oversized shower. At the front of the home, two bedrooms share the second bathroom while the fourth bedroom is located near the laundry room. This home includes a stainless steel electric range, microwave, and built-in dishwasher.
Stay informed with Livabl updates on new community details and available inventory.