























































Get additional information including price lists and floor plans.
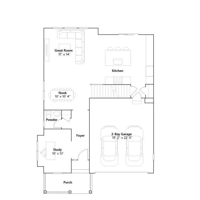
An open floorplan shared between the Great Room, kitchen and nook occupy the first level of this two-story home, offering direct access to the outdoor space at the back of the home. Four bedrooms provide enough room for the whole family all located on the second floor. Among the upstairs bedrooms is the luxe owners suite.
Stay informed with Livabl updates on new community details and available inventory.