














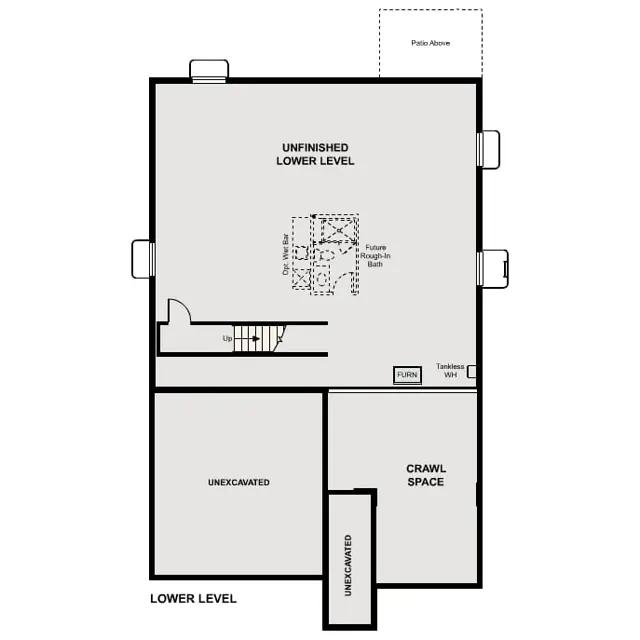
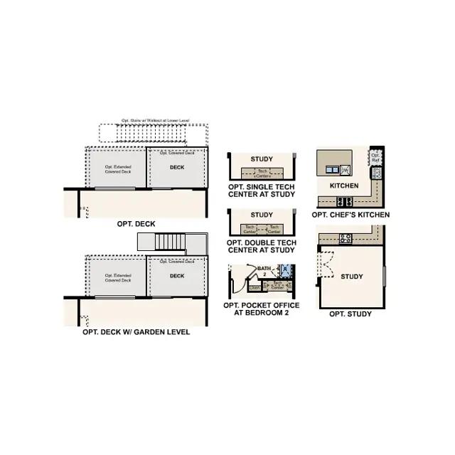
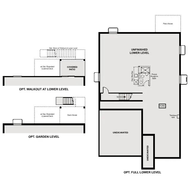
Featuring a thoughtfully designed ranch-style layout, the Acadia offers plenty of open-concept areas for family and friends to gather. Off the foyer, you'll find two generous secondary bedrooms sharing a full hall bath. At the heart of the home, a well-equipped kitchen-boasting wrap-around counters and a gracious center island for extra kitchen storage-flows into an expansive great room and dining area with direct access to the backyard. The secluded owners suite showcases a roomy walk-in closet and a private bath with double sinks and a benched shower. A standard unfinished basement completes the home. Options may include: Walkout or garden-level basement Finished basement with an extra bedroom and recreation room Gourmet or chefs kitchen Extended cabinetry in kitchen Fireplace in great room Extra bedroom in lieu of loft Extra bedroom with bathroom and walk...