



Get additional information including price lists and floor plans.
Images coming soon
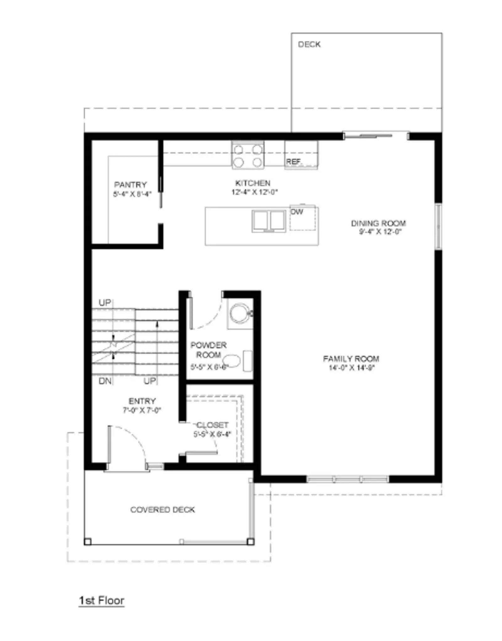
The Cupids is a contemporary detached townhome with plenty of storage in the garage & throughout. This open concept design includes a modern kitchen with an island and spacious kitchen. Design Highlights: Spacious porch with its own oversized walk-in closet. Open concept family, dining and kitchen space. Master suite has walk-in closet and ensuite Extra-long garage on the lower level. Second-floor laundry. Two additional bedrooms. Our Standard Turnkey Package also includes the building lot, a fully completed move-in ready home and the following; Complimentary Interior Design Consultation with Cohen Guy Interiors Tailored Support From Our Team Throughout Your Build Premium Vinyl Siding & Exterior Accent Features 30 Year Warranty Shingles Digital Thermostats and Electric Baseboard Heating Heat Recovery Ventilator Custom Kitchen Cabinets & ...
Stay informed with Livabl updates on new community details and available inventory.