hero-image-0
hero-image-1

357 Sand Oak Blvd

Whisper Dunes Townhomes
Sold
Sold
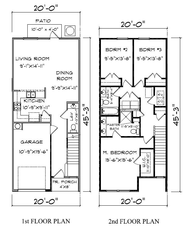
3
2
1,504
357 Sand Oak Blvd details
unit-banner-image
unit-banner-image
unit-banner-image
357 Sand Oak Blvd is now sold.
Check out available nearby townhomes below.