Breakwater at Ward Creek - Oasis Collection
Panama City Beach
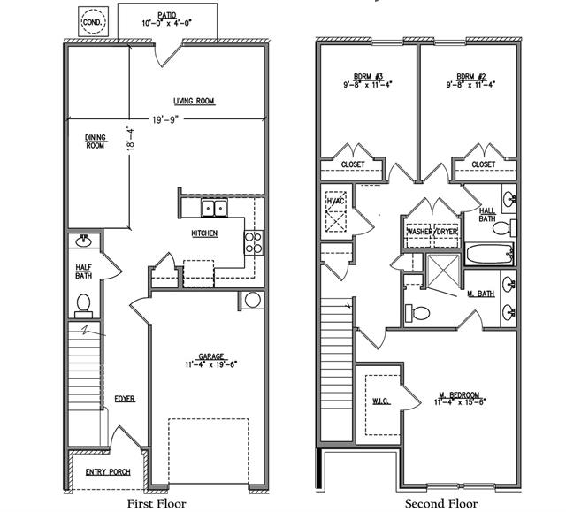
Breakwater at Ward Creek - Vista Collection
Bayside at Ward Creek
Breakwater at Ward Creek - Coastal Collection