














































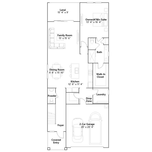
The first floor of this two-story home features a modern open concept floorplan connecting the family and dining rooms with a chef-inspired kitchen, along with a lanai for enhanced outdoor living. The luxe owners suite can be found nestled in its own corner on the primary level for enhanced privacy. Two additional bedrooms are located upstairs, as well as a versatile loft providing a shared living area on the second floor.
Stay informed with Livabl updates on new community details and available inventory.