



























Get additional information including price lists and floor plans.
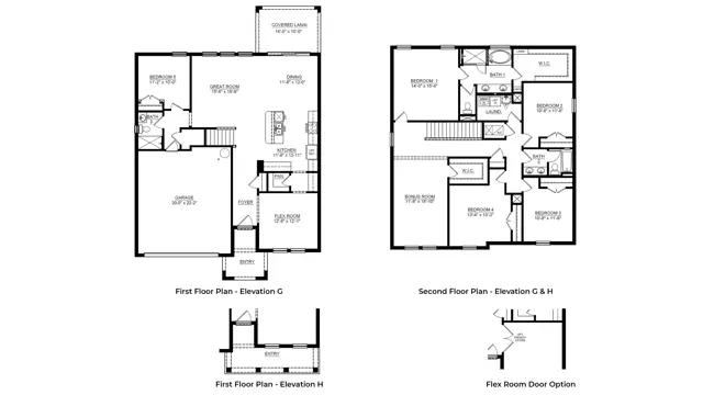
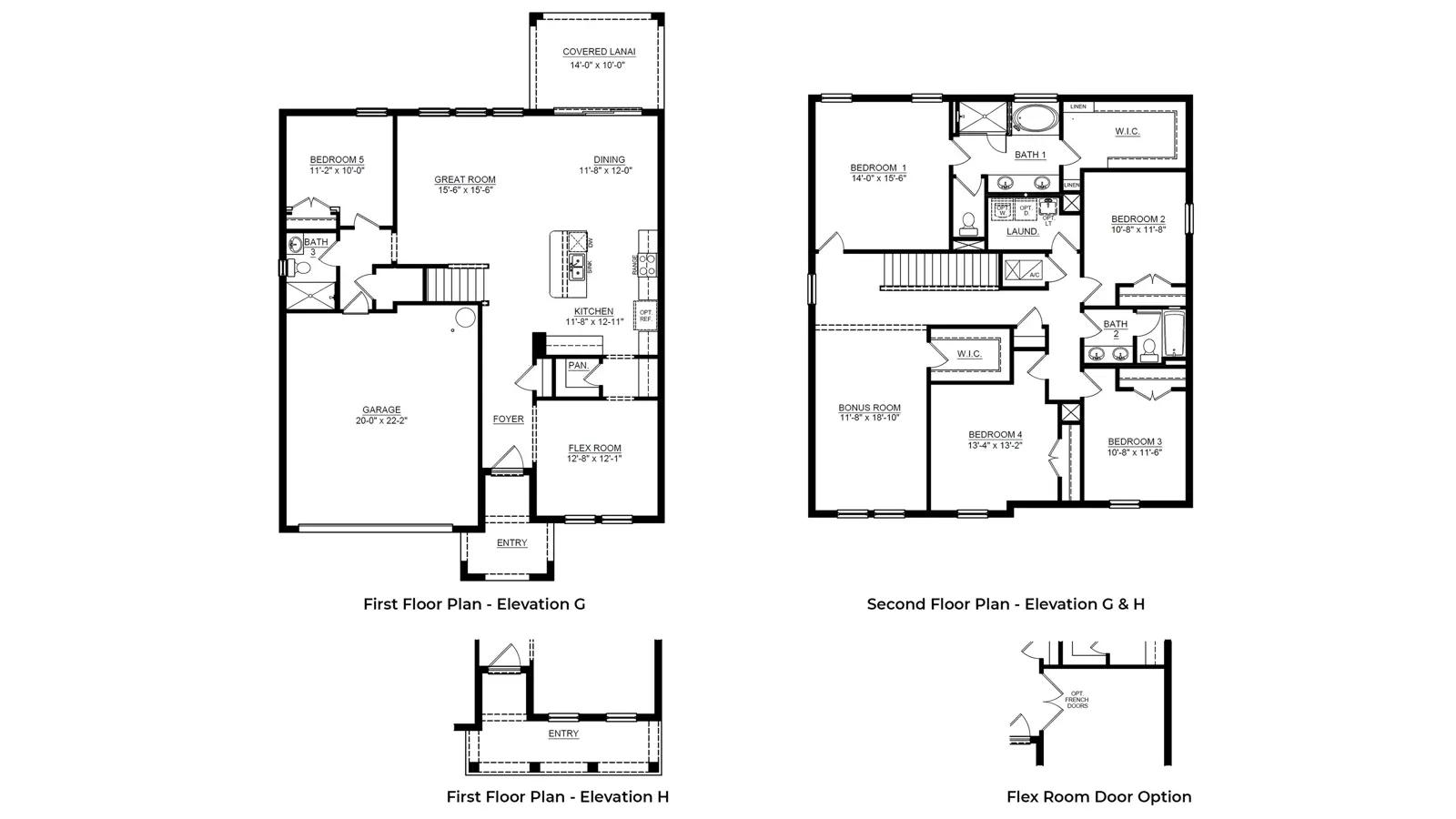
This two-story, all concrete block constructed home has a large open concept kitchen overlooking the great room and dining area that leads to a covered lanai. The first floor also provides a flex room upon entering the home, as well as a spacious guest bedroom and full bathroom. Upstairs there is a large bonus room, great for work or for play, as well as the Bedroom 1 which includes Bathroom 1, three additional bedrooms, a third full bathroom, and a well-appointed laundry room. This home comes with installed stainless-steel dishwasher, electric range, and microwave. Pictures, photographs, colors, features, and sizes are for illustration purposes only and will vary from the homes as built. Home and community information including pricing, included features, terms, availability, and amenities are subject to change and prior sale at any time without notice or obli...
Stay informed with Livabl updates on new community details and available inventory.