



























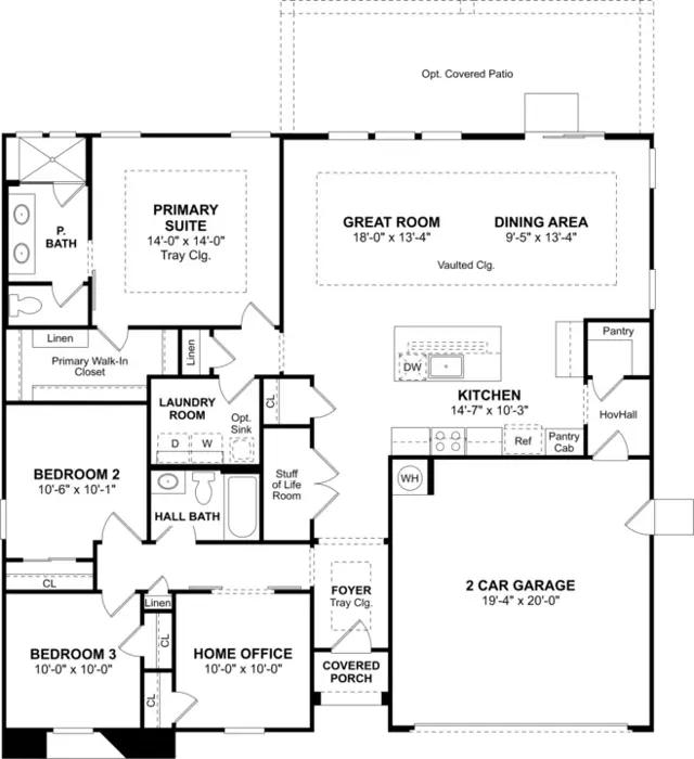
Bright kitchen adjacent to open dining area. Expansive great room with vaulted ceiling. Lavish primary suite and large walk-in closet with space for linens. HovHall near garage entrance helping to keep your home organized. Home office, great for working remotely. Available large covered patio for optimal outdoor living space.
Stay informed with Livabl updates on new community details and available inventory.