



















































Get additional information including price lists and floor plans.
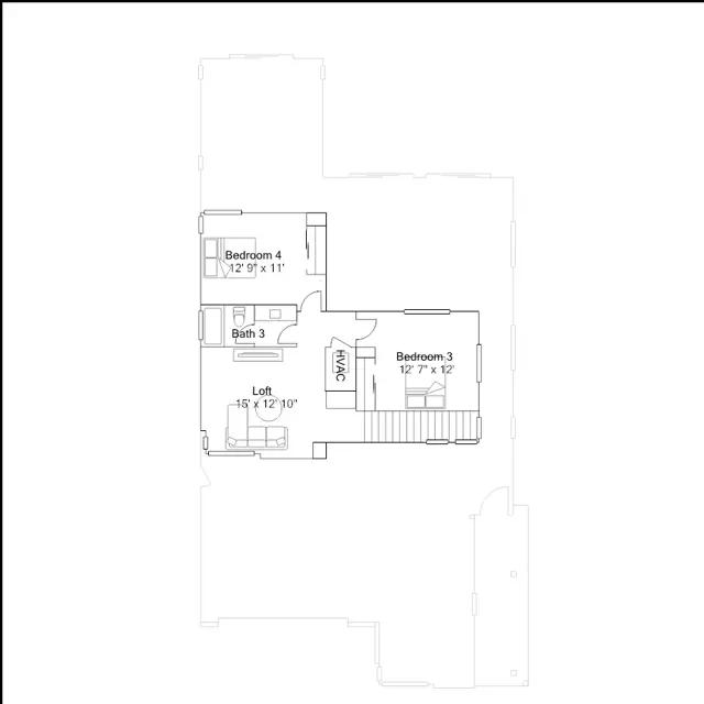
This new two-story home features a spacious layout with ample room to grow. A bedroom with an en-suite bathroom can be found off the foyer, leading to an inviting open-concept floorplan. The luxurious owners suite is tucked into a private corner at the back of the home. Two additional bedrooms and a versatile bonus room can be found on the second level.
Stay informed with Livabl updates on new community details and available inventory.