



























Get additional information including price lists and floor plans.
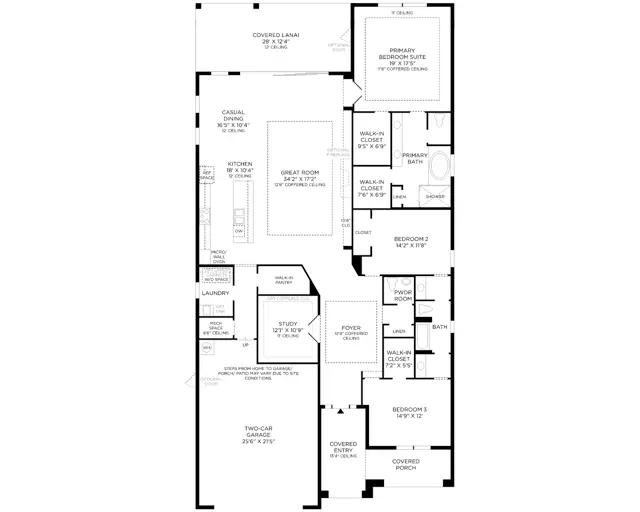
The Isabella's inviting covered porch and entry lead into the stunning foyer, revealing the expansive great room with coffered ceiling, bright casual dining area, and spacious covered lanai beyond. The well-designed kitchen features a large center island with breakfast bar, plenty of counter and cabinet space, and a sizable walk-in pantry. The sophisticated primary bedroom suite is enhanced by a lovely coffered ceiling, dual walk-in closets, and deluxe primary bath with dual-sink vanity, large soaking tub, luxe glass-enclosed shower, linen storage, and private water closet. Secondary bedrooms feature ample closets and shared bath with separate dual-sink vanity areas. Additional highlights include a private flex room off the foyer, a convenient powder room, centrally located laundry, and additional storage.
Stay informed with Livabl updates on new community details and available inventory.