New Homes for Sale
Articles
Professionals
Log in
Sign up
Photos 3
Videos 0
Map
Interactive floor plan 0
Virtual 0
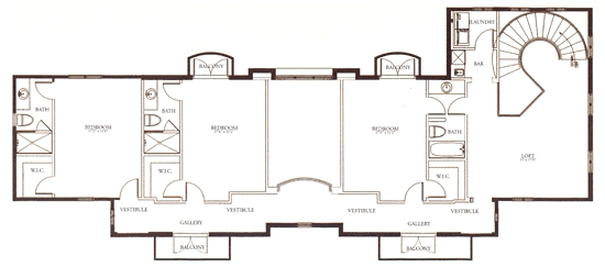
Carlton (FL) Plan
By
Toll Brothers
|
Frenchman's Reserve - Aristocrat Collection
Community
Available homes
Get updates
Save
Request info
Request info
Community
Available homes
Request info
Get updates
Save
Request info
Frenchman's Reserve - Aristocr...
Get updates
Request info
Sold
Sold
5
6
1
From 6,115
Carlton (FL) Plan details
Address:
Palm Beach Gardens, FL 33410
Plan type:
Detached Two+ Story
Beds:
5
Full baths:
6
Half baths:
1
SqFt:
From 6,115
Ownership:
Fee simple
Interior size:
From 6,115 SqFt
Lot pricing included:
Yes
Carlton (FL) Plan is now sold.