



















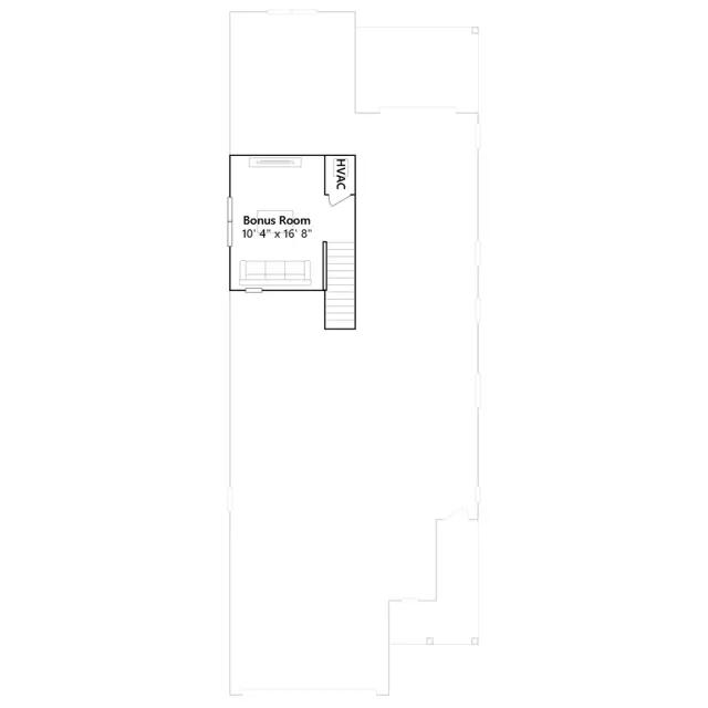
Exclusive to active adults 55+ and better! A spacious two-story home designed with single-level living in mind, provides everything residents need on the first floor including the open kitchen, dining room, Great Room and covered porch. At the opposite side of the home are all three bedrooms, including the private owners suite with an attached bathroom. Upstairs is a sprawling bonus room for versatile needs.
Stay informed with Livabl updates on new community details and available inventory.