New Homes for Sale
Articles
Professionals
Log in
Sign up
Photos 26
Videos 0
Map
Interactive floor plan 0
Virtual 0
Carlisle Plan
By
Maronda Homes
   |  Â
Huntington Estates
Community
Available homes
Get updates
Save
Request info
Request info
Community
Available homes
Request info
Get updates
Save
Request info
Huntington Estates
Get updates
Request info
Sold
Sold
4
2
1
From 2,802
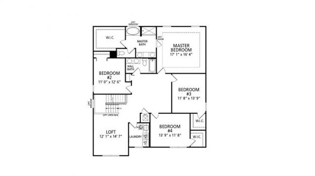
Carlisle Plan details
Address:
Â
Palm Bay, FL 32909
Plan type:
Â
Detached Two+ Story
Beds:
Â
4
Full baths:
Â
2
Half baths:
Â
1
SqFt:
Â
From 2,802
Ownership:
Â
Not set
Interior size:
Â
From 2,802 SqFt
Lot pricing included:
Â
Yes
Carlisle Plan is now sold.
Check out available nearby plans below.
Similar 4 bedroom plans nearby
view all
Heritage Bay
Malabar Springs
From $397,990
Palm Bay
Escambia
Palm Bay
From $384,900
Palm Bay
Sandalwood
Malabar Springs
From $416,990
Palm Bay
Serena
Malabar Springs
From $400,990
Palm Bay
Patterson
Malabar Springs
From $366,990
Palm Bay
Brooks
Malabar Springs
From $349,990
Palm Bay
Grove
Malabar Springs
From $354,990
Palm Bay
Cascade
Malabar Springs
From $347,990
Palm Bay