hero-image-0
hero-image-1

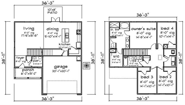
4679 Apple Field Way

By

Express Homes

   |   

Wynfield

Wynfield
Sold
Sold
4
2
1,884
4679 Apple Field Way details
unit-banner-image
unit-banner-image
unit-banner-image
4679 Apple Field Way is now sold.
Check out available nearby homes below.