New Homes for Sale
Articles
Professionals
Log in
Sign up
Photos 28
Videos 0
Map
Interactive floor plan 0
Virtual 1
Park Place Residence Plan 1 Plan
By
Oakwood Communities Inc.
   |  Â
Park Place
Community
Available homes
Get updates
Save
Request info
Request info
Community
Available homes
Request info
Get updates
Save
Request info
Park Place
Get updates
Request info
Sold
Virtual Tours
Sold
3
3
3
1
1
From 2,015
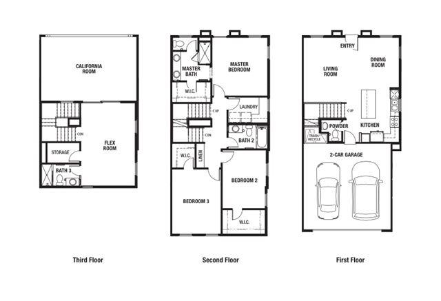
Park Place Residence Plan 1 Plan details
Address:
Â
Oxnard, CA 93036
Plan type:
Â
Two+ Story
Beds:
Â
3
Full baths:
Â
3
Half baths:
Â
1
Dens:
Â
1
SqFt:
Â
From 2,015
Ownership:
Â
Fee simple
Interior size:
Â
From 2,015 SqFt
Lot pricing included:
Â
Yes
Basement:
Â
No
Garage:
Â
2
Park Place Residence Plan 1 Plan is now sold.