Kathryn
Wilson Cove
Gurley
Hickory
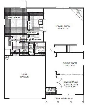
The Arcadia B
The Meadows at Hampton Cove
Owens Cross Roads
Madison
Elm
Fraser
Destin
Holly