




























































Get additional information including price lists and floor plans.
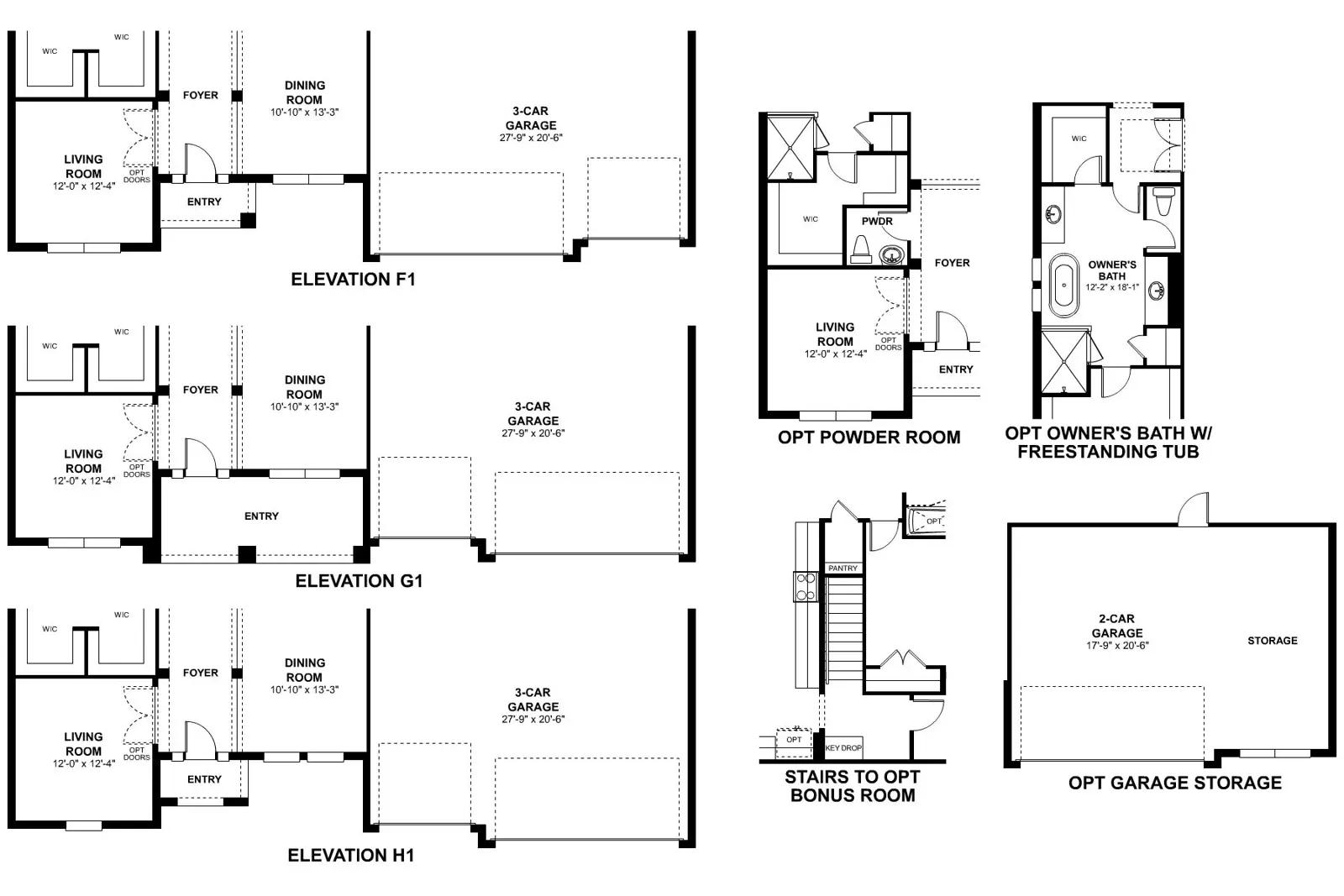
The Brookhaven FL is one of M/I Homes most desired home designs! With this Mediterranean-inspired, single-story home with a 3-car garage, you can choose from exteriors featuring a facade with full stone accent, oversized windows, or covered entry (each with lace stucco finish), as well as a brick paver driveway, and lead walk. Learn more today!
Stay informed with Livabl updates on new community details and available inventory.