hero-image-0

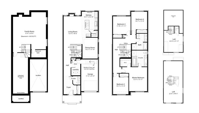
Hawthorne (3 Storey) Plan

Wateridge Village
Sold
Sold
4
3
1
From 3,720
unit-banner-imageunit-banner-imageunit-banner-image
Hawthorne (3 Storey) Plan details
Hawthorne (3 Storey) Plan is now sold.
Check out available nearby plans below.