hero-image-0
hero-image-1

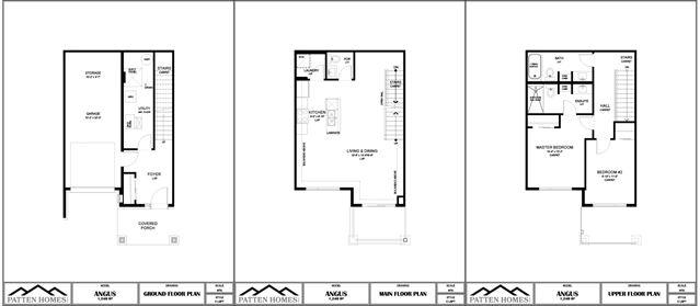
The Angus Plan

Shea Village - Townhomes
For sale
For sale
From $519,900
2
2
1
From 1,240
The Angus Plan details

Contact sales center

Get additional information including price lists and floor plans.

Interested? Receive updates

Stay informed with Livabl updates on new community details and available inventory.