Granville End
Parkside at Arcadia
Kanata West, Ottawa
Granville
Bayview
Dawson End
The Chester
Shea Village - Townhomes
Stittsville, Ottawa
Interior Units
Diamondview Towns
Carp, Ottawa
Exterior Units
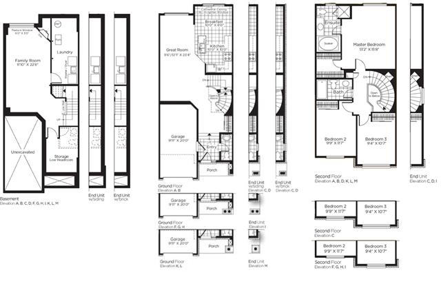
The Waterford (3bdr)
Stay informed with Livabl updates on new community details and available inventory.
Register for Brookline, new single-family homes and townhomes coming soon to Kanata in Ottawa
Brookline continues on the developer’s tradition of offering an exquisite collection homes within a sought-after neighbourhood in Ottawa’s west end.