hero-image-0
hero-image-1
hero-image-2
hero-image-3
hero-image-4
hero-image-5

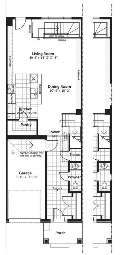
Gregoire Plan

Lilythorne - Phase 2 - Condos ...
Sold
Sold
3
2
1
From 2,160
unit-banner-imageunit-banner-imageunit-banner-image
Gregoire Plan details
Gregoire Plan is now sold.
Check out available nearby plans below.

Interested? Receive updates

Stay informed with Livabl updates on new community details and available inventory.