Marrakech
Monocle
Hampton Park, Ottawa
Suite 302 & 402
1451 Wellington
Island Park, Ottawa
Suite 307 & 407
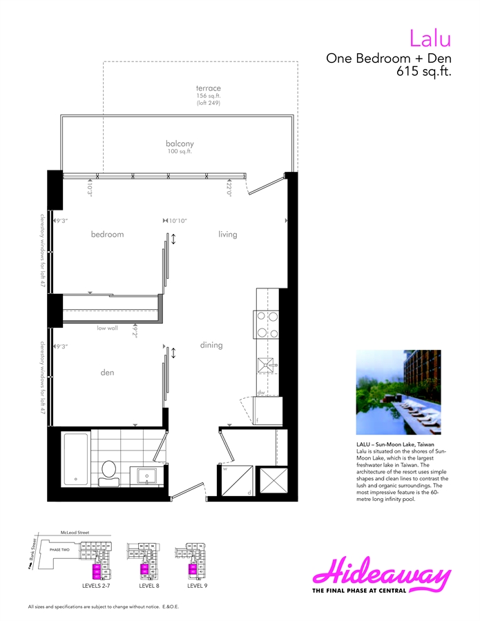
Fiji
Suite 606, 706, 806 & 906
Suite 605, 705, 805 & 905
Suite 607, 707,807 & 907
Suite 603, 703, 803 & 903