hero-image-0

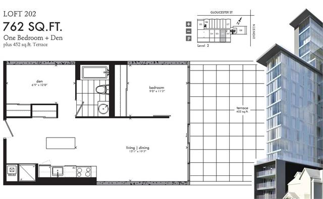
Loft 202

Gotham Ottawa
Sold
Sold
1
1
1
762
Loft 202 details
unit-banner-image
unit-banner-image
unit-banner-image
Loft 202 is now sold.
Check out available nearby condos below.