hero-image-0
Gotham Ottawa
Sold
Sold
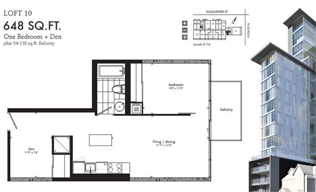
1
1
1
648
Loft 10 details
unit-banner-image
unit-banner-image
unit-banner-image
Loft 10 is now sold.
Check out available nearby condos below.