hero-image-0

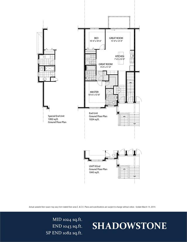
The Shadowstone Mid Unit Plan

Fieldstone Flats
Sold
Sold
2
2
From 1,024
unit-banner-imageunit-banner-imageunit-banner-image
The Shadowstone Mid Unit Plan details
The Shadowstone Mid Unit Plan is now sold.
Check out available communities below.