hero-image-0
hero-image-1
hero-image-2

1168 HIGHCROFT DRIVE

Elevation Manotick
Not Available
Model Home
Not available
$1,779,800
3
3
3
1
1
2,700
1168 HIGHCROFT DRIVE details
unit-banner-image
unit-banner-image
unit-banner-image

Contact sales center

Get additional information including price lists and floor plans.

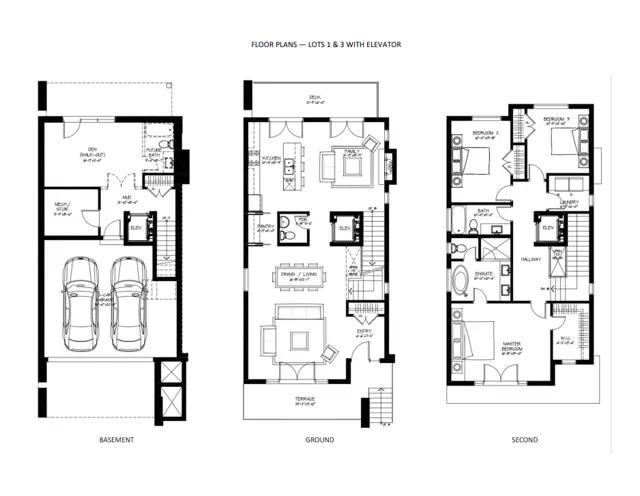
Floor plan

2024_03_12_06_21_52_ridge_exterior_front.jpg
2024_03_12_06_21_56_ridge_exterior_rear.jpg
2025_06_23_07_07_08_ridge_plan.webp
For sale

Ridge

Elevation Manotick

Interested? Receive updates

Stay informed with Livabl updates on new community details and available inventory.