Tacoma - Pacific Series
Riverside South - Single-Family Homes
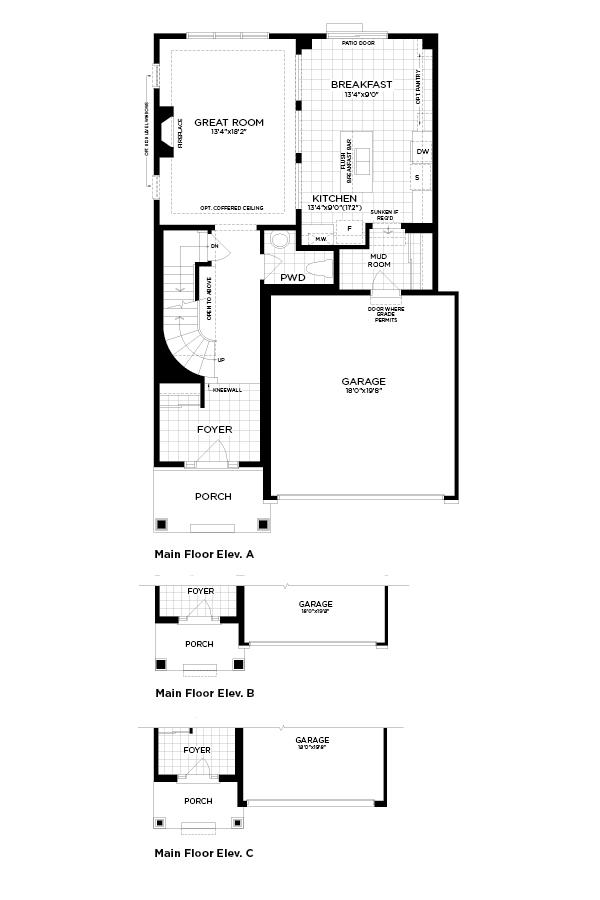
Riverside South - Leitrim, Ottawa
Tacoma - Horizon Series
Hillsboro - Pacific Series
Penticton - Horizon Series
Hazelton - Pacific Series
Claremont - Pacific Series
Hillsboro - Horizon Series
Silverton - Pacific Series
A closer look at the interiors of Chapman Mills, an Ottawa project with plenty of variety
Peruse pics of the designer-decorated Westminster and Picadilly models.