hero-image-0
Central at Bank and Gladstone
Sold
Sold
1
From 665
unit-banner-imageunit-banner-imageunit-banner-image
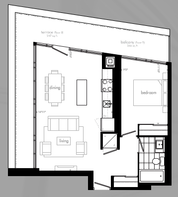
PH3 Plan details
PH3 Plan is now sold.
Check out available nearby plans below.