New Homes for Sale
Articles
Professionals
Log in
Sign up
Photos 1
Videos 0
Map
Interactive floor plan 0
Virtual 0
Brompton Plan
By
Urban Capital
and
Tamarack Homes
|
Central at Bank and Gladstone
Community
Available homes
Get updates
Save
Request info
Request info
Community
Available homes
Request info
Get updates
Save
Request info
Central at Bank and Gladstone
Get updates
Request info
Sold
Sold
1
1
From 609
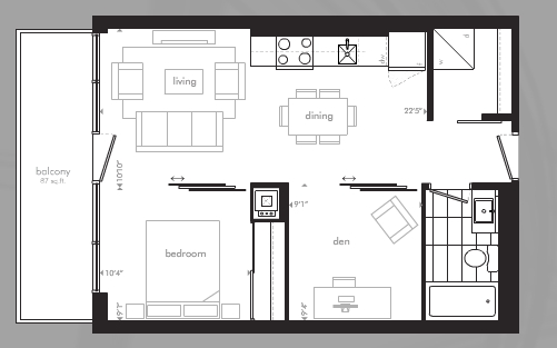
Brompton Plan details
Address:
Ottawa, ON K2P
Plan type:
Suite
Beds:
1
Dens:
1
SqFt:
From 609
Ownership:
Condominium
Interior size:
From 609 SqFt
Brompton Plan is now sold.
Check out available nearby plans below.
Similar 1 bedroom plans nearby
view all
Mani
Monocle
From $991,990
Hampton Park, Ottawa
Fiji
Monocle
From $914,990
Hampton Park, Ottawa
Barcelona
Monocle
From $834,990
Hampton Park, Ottawa
Santorini
Monocle
From $808,900
Hampton Park, Ottawa
Bali
Monocle
From $924,700
Hampton Park, Ottawa
Dubai
Monocle
From $833,990
Hampton Park, Ottawa
Seychelles
Monocle
From $809,500
Hampton Park, Ottawa
Marrakech
Monocle
From $753,900
Hampton Park, Ottawa