hero-image-0

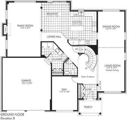
Balmoral Plan

Butternut Creek
Sold
Sold
4
3
1
From 3,799
unit-banner-imageunit-banner-imageunit-banner-image
Balmoral Plan details
Balmoral Plan is now sold.
Check out available nearby plans below.