hero-image-0
hero-image-1
Bridlewood Trails - Condos & T...
For sale
For sale
Last listed from $410,900
4
2
1
From 2,250
unit-banner-imageunit-banner-imageunit-banner-image
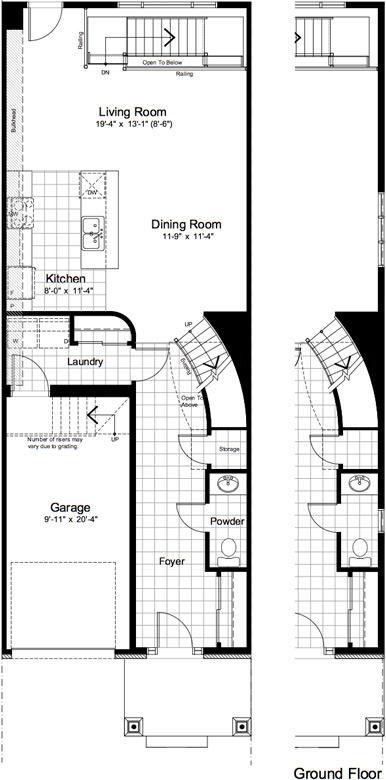
Infinity 4 Plan details

Contact sales center

Get additional information including price lists and floor plans.

Interested? Receive updates

Stay informed with Livabl updates on new community details and available inventory.