hero-image-0

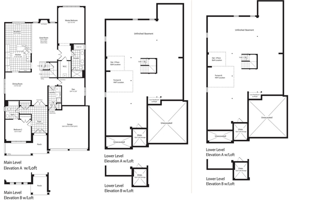
The Shire with Loft Plan

Blackstone
Sold
Sold
4
3
From 2,626
unit-banner-imageunit-banner-imageunit-banner-image
The Shire with Loft Plan details
The Shire with Loft Plan is now sold.
Check out available nearby plans below.