hero-image-0

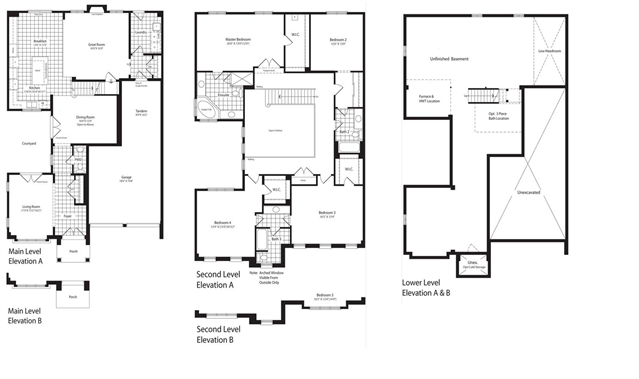
The Messara Plan

Blackstone
Sold
Sold
4
3
1
From 3,283
unit-banner-imageunit-banner-imageunit-banner-image
The Messara Plan details
The Messara Plan is now sold.
Check out available nearby plans below.