
















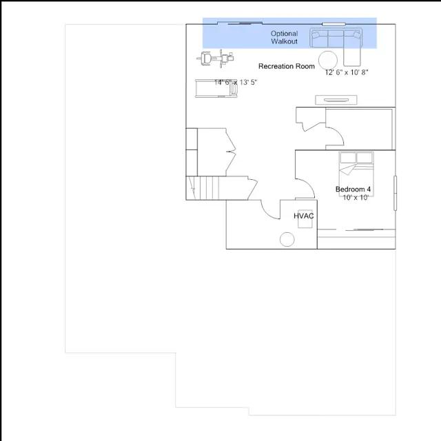
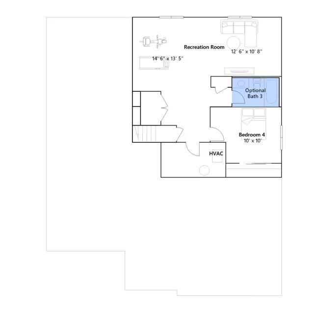
This new two-story home showcases a modern design with a finished lower-level, featuring a recreation room and bedroom with the option to include a full bathroom. On the main-level Great Room and dining room are beautiful vaulted ceilings, which is complemented by a kitchen with a center island and a flex space that offers endless possibilities. The luxe owners suite and two secondary bedrooms are located on the uppermost level, while a fourth bedroom ideal for overnight guests is situated on the lower one.
Stay informed with Livabl updates on new community details and available inventory.