



























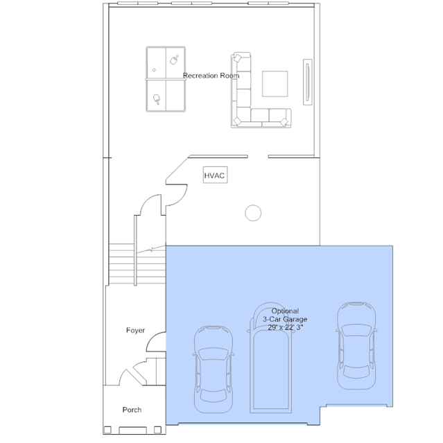
This new three-level floorplan offers an optional look-out lower level for a future recreation room and private fourth bedroom at select homesites. Head up a few steps from the foyer to the open concept kitchen, dining and living areas for seamless transitions between spaces. At the top level of this home, there are two secondary bedrooms adjacent to a hallway bathroom and the spacious owners suite with a private bathroom and walk-in closet.