















































Get additional information including price lists and floor plans.
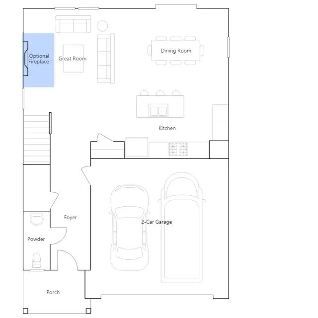
This new two-story home is a family-friendly haven. The first floor features a Great Room that flows seamlessly into the dining room and the gourmet kitchen in a modern open-plan layout. The second floor hosts a loft that adds shared living space to the home and four restful bedrooms including a luxe owners suite, which features a spa-like bathroom and large walk-in closet.
Stay informed with Livabl updates on new community details and available inventory.