























































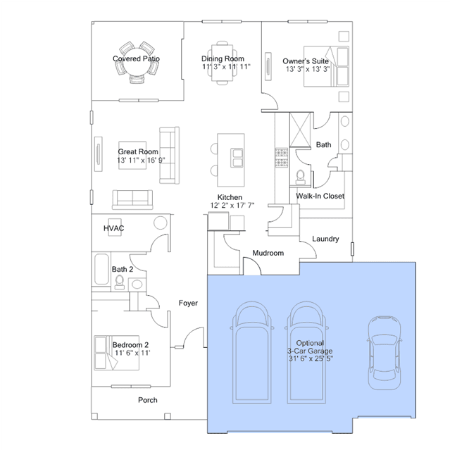
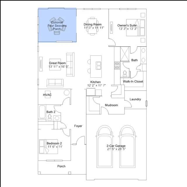
This new single-story home design is comfortable and elegant. It features a Great Room for get-togethers, a dining room for memorable meals, a kitchen for inspired cooking and a covered patio for outdoor living. The owners suite and the secondary bedroom are located in opposite corners of the home for added privacy.